We will be in touch with you shortly.
×
Index
Work
Projects
Blog
About
Office
Employment
Media
News
Press
Awards
instagram
Contact
LIANG ARCHITECTURE BUREAU
Index,
Office,
Media,
Contact
LOS ANGELES
14:47PM
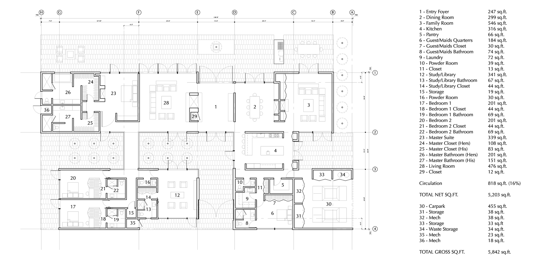
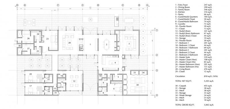
Mark Avenue Residence
Location: Carpenteria, CA
Program(s): Residential - Single Family
Size: 5,842 sq. ft.
Status: In Progress